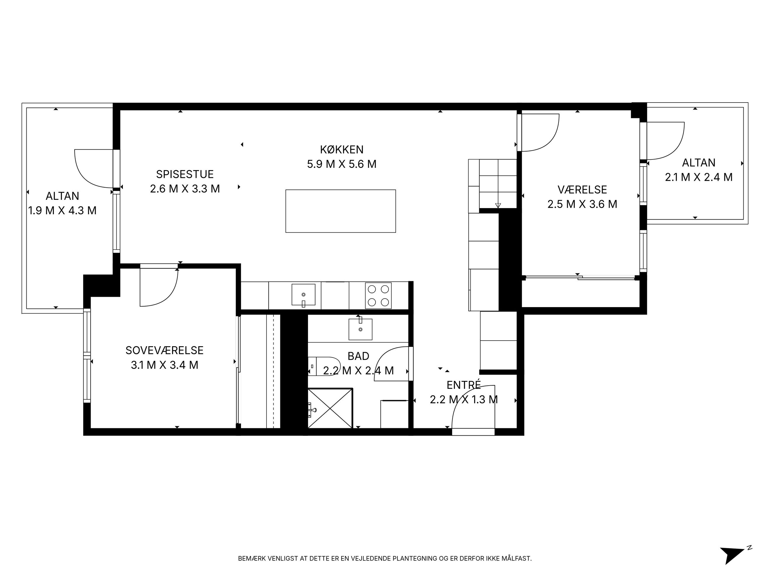
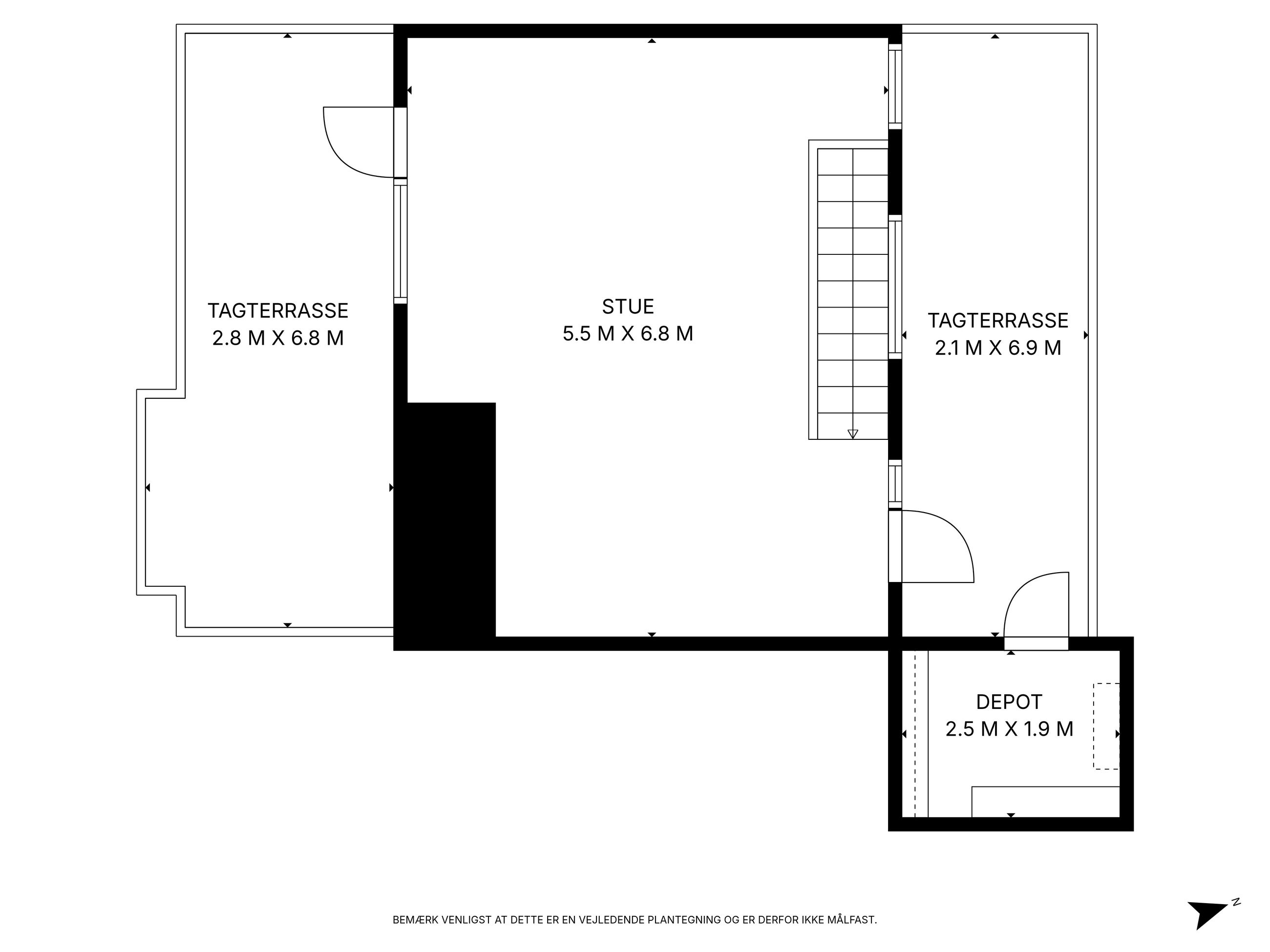
Lejligheden er placeret højt i ejendommen, hvilket sikrer et imponerende lysindfald dagen igennem samt en behagelig, luftig rumfornemmelse. Den gennemtænkte planløsning skaber en naturlig opdeling mellem de indbydende opholdsrum og de mere private zoner, hvilket gør boligen ideel til såvel par som den kvalitetsbevidste familie. De moderne og nøje udvalgte materialer understreger boligens rene, tidløse æstetik og giver et eksklusivt, men afslappet udtryk.
Ejendommen er beliggende i et moderne og velkomponeret bykvarter, hvor kvalitet, arkitektur og livsstil er i fokus. Her er der tænkt på detaljerne – fra de smukke fællesarealer til den harmoniske integration med omgivelserne. I nærområdet finder du et rigt udvalg af caféer, gastronomi, specialbutikker og dagligvareindkøb, alt sammen suppleret af rekreative områder og stemningsfulde promenader langs vandet.
Transportmulighederne er optimale med metro, bus og cykel lige i nærheden, hvilket gør det let og bekvemt at bevæge sig rundt i hele København.
På Sundkaj 91, 5. th. finder du denne indbydende lejlighed, centralt placeret i Nordhavn – et af Københavns mest eftertragtede og dynamiske områder. Nordhavn er kendt for sin unikke balance mellem pulserende byliv, vand, markant arkitektur og grønne åndehuller. Her bor du moderne, urbant og eksklusivt – med havet som nærmeste nabo.
En bolig for den kræsne køber, der ønsker det bedste af det hele.
Ejendommen:
Ejendommen ved navn CPH Porthouse, er et præmieret byggeri der er blevet certificeret med en guldmedalje efter DGNBs miljøstandarder på bydelsniveau. Ejendommen byder naturligvis på elevator, hyggeligt gårdmiljø, cykel kælder og brugsret til depotrum. Endvidere er ejendommen veldrevet og fået installeret afkalkningsanlæg. Gode parkeringsmulighed under bl.a. Kronløbsøen og Metroens Nordhavnslinje ligger kun 250 meter væk.
Området:
Nordhavn er igennem de seneste par år etableret som en veludbygget og livlig bydel. Den Internationale skole CIS (Copenhagen International School) åbnede i 2017 og den nye luksusbiograf åbnede i november 2019. Metroen er indviet i marts 2020 og har for alvor hægtet bydelen sammen med det centrale København. Fra det børnevenlige og rolige Sundkaj har man kun få minutter til det glade byliv omkring Århusgadekvarteret, som spiller en central rolle i Nordhavns fremtid som området hvor butikker, indkøb, havnebad, restauranter, cafeer, biograf mv. er koncentreret.
Mange tak fordi Du kiggede på et af vores boligemner. Såfremt Du har brug for yderligere oplysninger, eller hvis Du ønsker at blive skrevet op i vores effektive køberkartotek, er Du altid velkommen til at kontakte os.
Vi anbefaler endvidere, at Du følger os på Instagram og Facebook hvor vi tillige ofte annoncerer nye boliger før de rammer diverse boligsites på internettet.
Hvis Du overvejer et salg eller blot et pristjek af Din nuværende bolig, vil vi se meget frem til at præsentere Dig for en gratis salgsvurdering, hvor vi omhyggeligt vil vurdere Din nuværende bolig med et personligt engagement, naturligvis helt uforpligtende samt med tilbud om solgt eller gratis.
R103
Sandkaj 17A
2150 Nordhavn