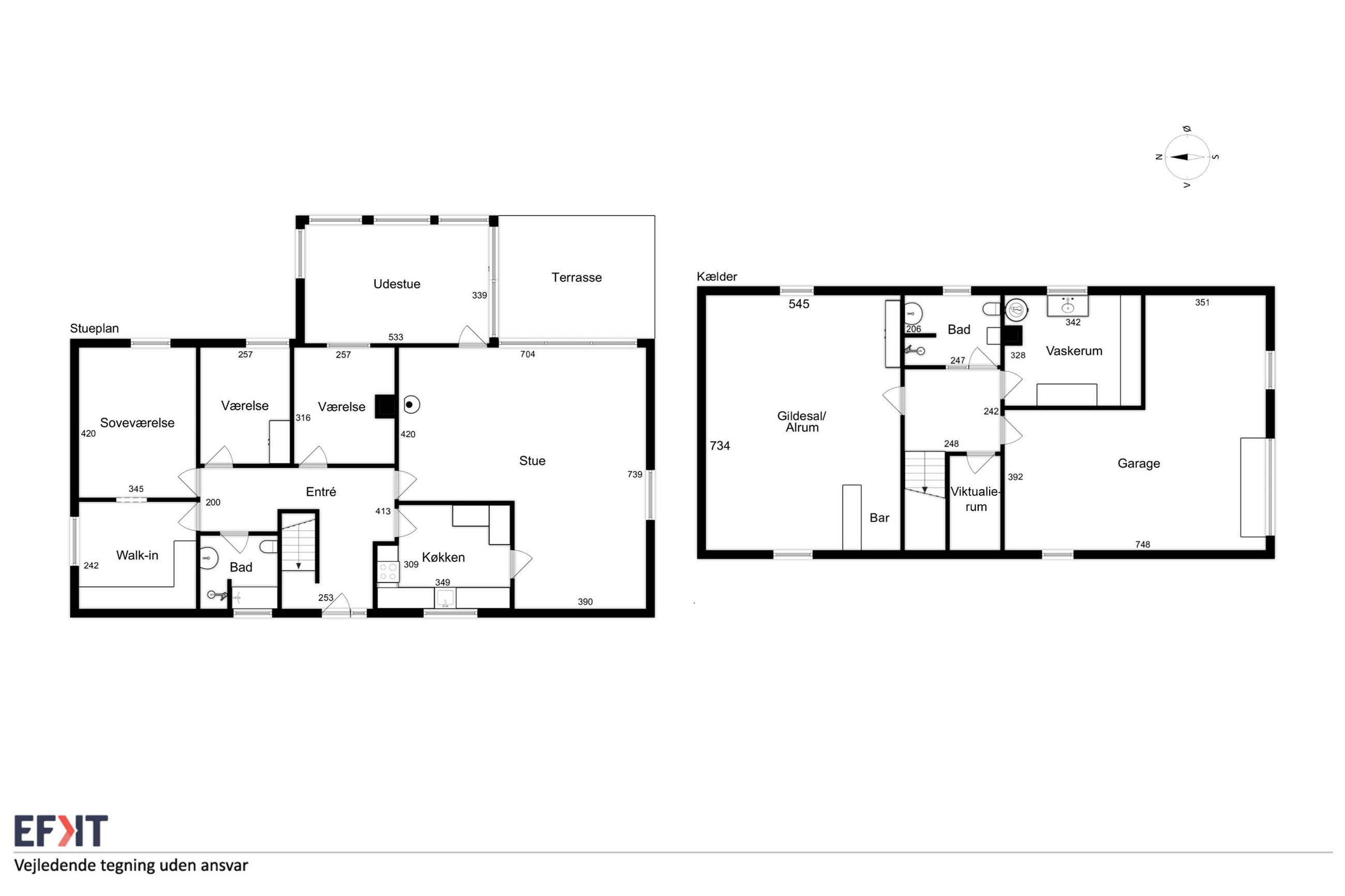
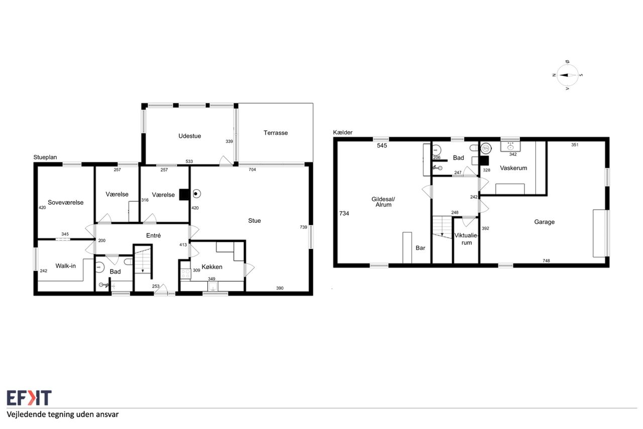
1 PLANS VILLA MED 132 M2 KÆLDER MED MANGE ANVENDELSESMULIGHEDER - 2 BADEVÆRELSER - STOR CARPORT
I roligt og børnevenligt villakvarter finder man denne meget rummelige 1 plans villa med 132 m2 god kælder. Der er i området gode muligheder for gåture - især i "Folkeparken", ligesom dyrelivet i området kan nydes på gåturene. Villaen ligger højt placeret i området ved en blind vej og med godt udsyn over området. Haven er med grøn randbeplantning, stor græsplæne, udhus og flere terrasser. Selve boligen er indrettet i stueplan med køkken fra 2017 med hvide elementer, direkte adgang tl stor opholdsstue med spiseafdeling og udgang til ældre udestue, soveværelse med stort walk-in closet (evt. værelse), 2 børneværelser, badeværelse med både badekar og bruseniche samt gulvvarme, og entre med nedgang til kælderen.I kælderplan er der trapperum, stor gildesal/hobbyrum, vaskerum med skabe, ekstra badeværelse med bruseniche, viktualierum og stort garage med værkstedsafdeling og elport. Alle opholdsrum er med nye klikgulv. Mulighed for fibernet. Ruds Vedby er en hyggelig stationsby, hvor du finder alt du skal bruge til hverdagen. Her er indenfor gåafstand både skole, indkøb, hal, sportsmuligheder og ikke mindst friluftsbadet. Toget kører til Slagelse og Tølløse. Bussen kører til Næstved og Svinninge. BO CENTRALT I RUDS VEDBY - BOLIG MED MASSER AF PLADS OG MANGE MULIGHEDER
Prøv vores klimaberegner og find de mest rentable energiforbedringer til netop din bolig. Sammensæt dine egne løsninger og se straks den samlede gevinst for både din økonomi og for klimaet.
Forbedringer til
Møllemarksvej 24
Vis
Hvad er din bolig værd lige nu?
Få et lynhurtigt prisestimat på din bolig. Indtast din adresse og svar på 3 korte spørgsmål om boligens stand – så viser vi dig, hvad den cirka kan handles for i dag
Hvor ligger din bolig?
Vi kan desværre ikke beregne en pris på den valgte adresse. Vælg venligst en anden adresse.
Bemærk: Beregneren gælder for almindelige ejerboliger og sommerhuse. Har du en andelsbolig, ideel anpart, landbrug, nybyg eller ejendom med erhverv? Så giv din lokale mægler et kald for en præcis vurdering.
Hvor god er...
din bolig's beliggenhed?
Hvor god er...
din bolig's indvendige stand?
Hvor god er...
din bolig's udvendige stand?
Hvilken type bolig bor du i?
Vil du have den korrekte pris?
Kontakt os allerede i dag for en gratis og uforpligtende vurdering. Her får du den rigtige pris.
* Der samles ingen personlige oplysninger uden dit udtrykkelige samtykke.
Ved at klikke på denne checkboks giver du dit samtykke til, at dine data samles og behandles af RealMæglerne A/S for at kunne kontakte dig.
Du kan til enhver tid tilbagekalde dit samtykke. For at gøre dette skal du blot sende en meddelelse til [email protected].
Læs mere på privatlivspolitikkerne.
Glemt adgangskode
Tilmeldt via. mægler
Kontakt Mægler
Tak for din interesse
Mægleren vil kontakte dig hurtigst muligt
Tak for din tilmelding til åbent hus!
Adresse:
Dato:
Tidspunkt:
Vi glæder os til at vise dig boligen. Har du spørgsmål inden vi ses, kan du kontakte fra RealMæglerne
Vi glæder os til at vise dig boligen. Har du spørgsmål inden vi ses, er du velkommen til at kontakte os