På Mejdal Søvej 2 udbydes en velindrettet og løbende moderniseret étplansvilla beliggende i det eftertragtede Mejdal. Her kombineres en funktionel planløsning med pæne, opdaterede opholdsrum og en god, familievenlig beliggenhed.
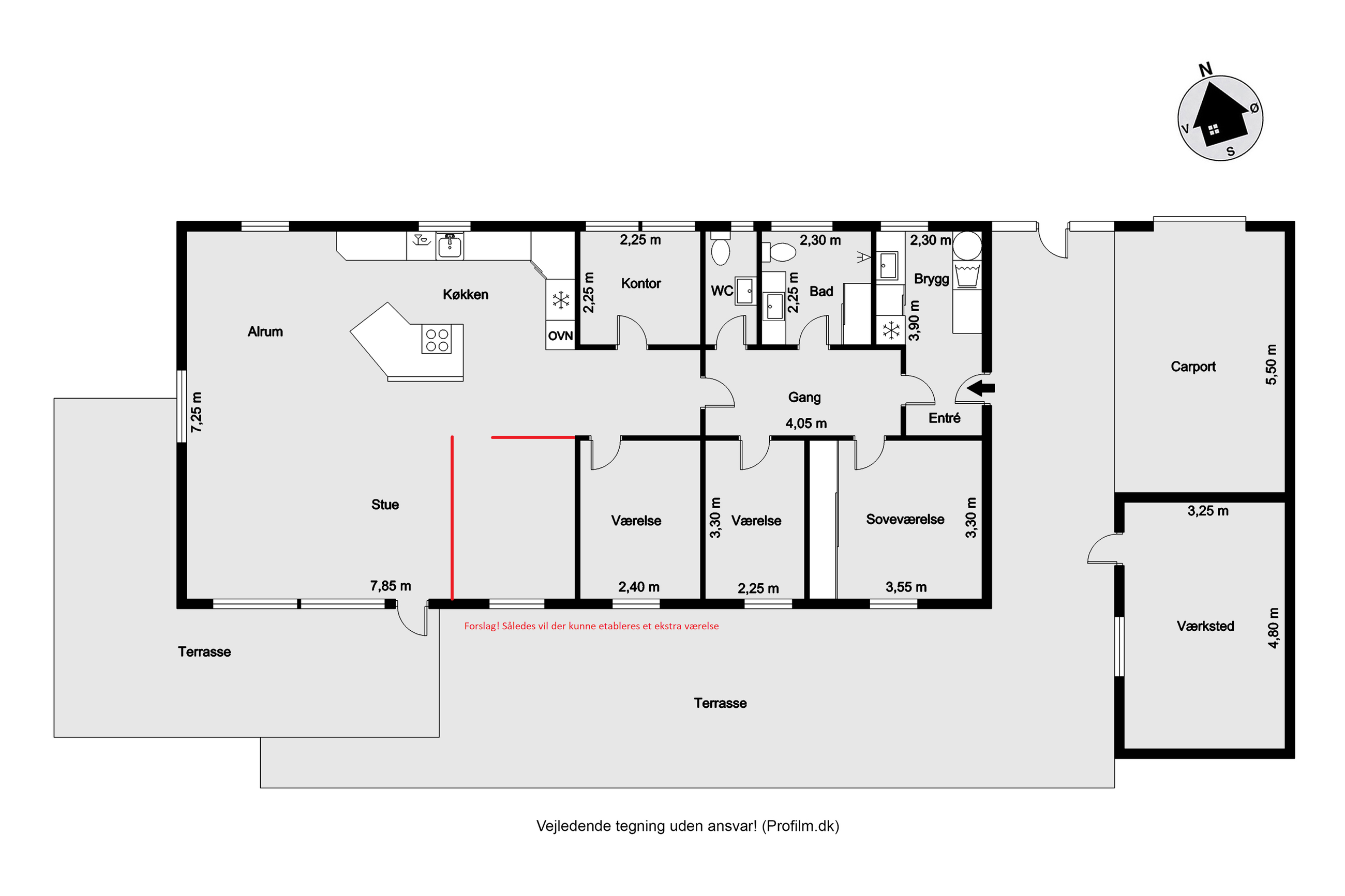
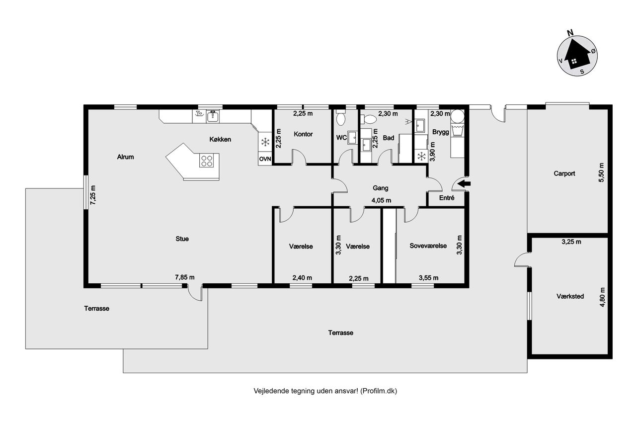
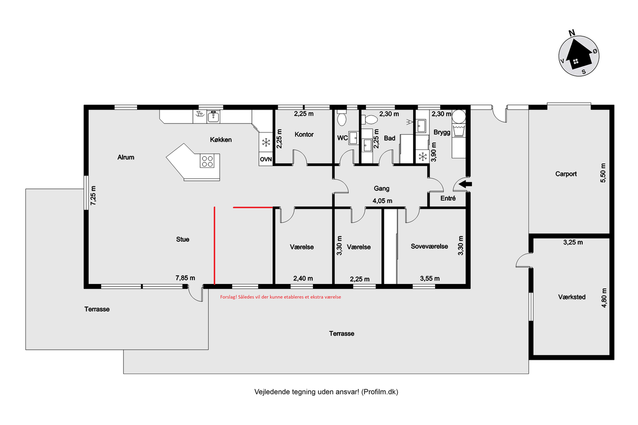
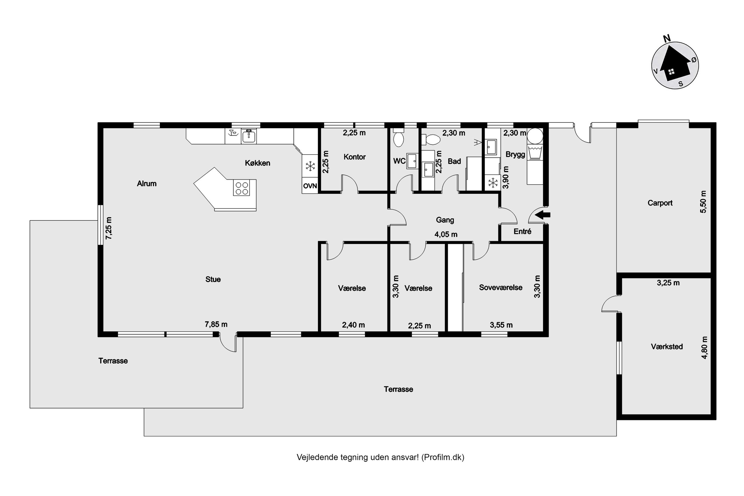
Boligen byder velkommen i en praktisk entré/bryggers med vaskefaciliteter og god opbevaringsplads. Herfra er der adgang til badeværelse, gæstetoilet samt tre regulære værelser, som giver fine muligheder for både børneværelser, soveværelse eller hobbyrum.
I den modsatte ende af huset findes boligens naturlige samlingspunkt – et åbent og indbydende køkken/alrum og stue i ét. Rummet er pænt istandsat med udskiftede gulve, troldtektlofter og et opdateret køkken, hvilket skaber en moderne og indbydende atmosfære. Den åbne indretning giver gode møbleringsmuligheder og et naturligt samspil mellem madlavning og ophold. Fra stuen er der direkte udgang til sydvendt terrasse og have.
Derudover rummer boligen et kontor, som tidligere har fungeret som entré - Det kan genetableres ved at udskifte vinduet med en dør, hvis en separat entré ønskes.
Til ejendommen hører carport samt et tilhørende værksted.
Mejdal er et særdeles populært og familievenligt område i Holstebro med kort afstand til indkøb, skole, daginstitutioner og fritidsaktiviteter. Området er kendt for sine grønne omgivelser og stisystemer, der gør det nemt og trygt at færdes. Samtidig er der kort afstand til Holstebros bymidte, hvilket giver en god kombination af rolige villakvarterer og nem adgang til byens faciliteter.
En indflytningsklar og velbeliggende villa med en god planløsning – ideel til børnefamilien eller parret, der ønsker en overskuelig bolig i attraktive omgivelser.