Velkommen til denne smukke villa fra 1975, der tilbyder en fantastisk udsigt over Nørreådalen og ligger i et roligt og naturskønt villakvarter i Tapdrup. Huset er løbende vedligeholdt og fremstår i flot stand med bl.a. udskiftning af vinduer og moderne energiløsninger som luft-til-vand varmepumpe og solceller på taget, som sikrer et lavt energiforbrug.
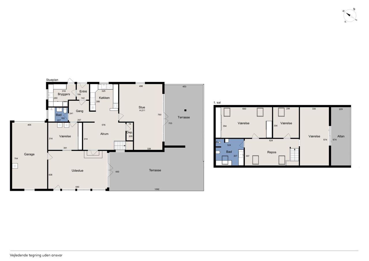
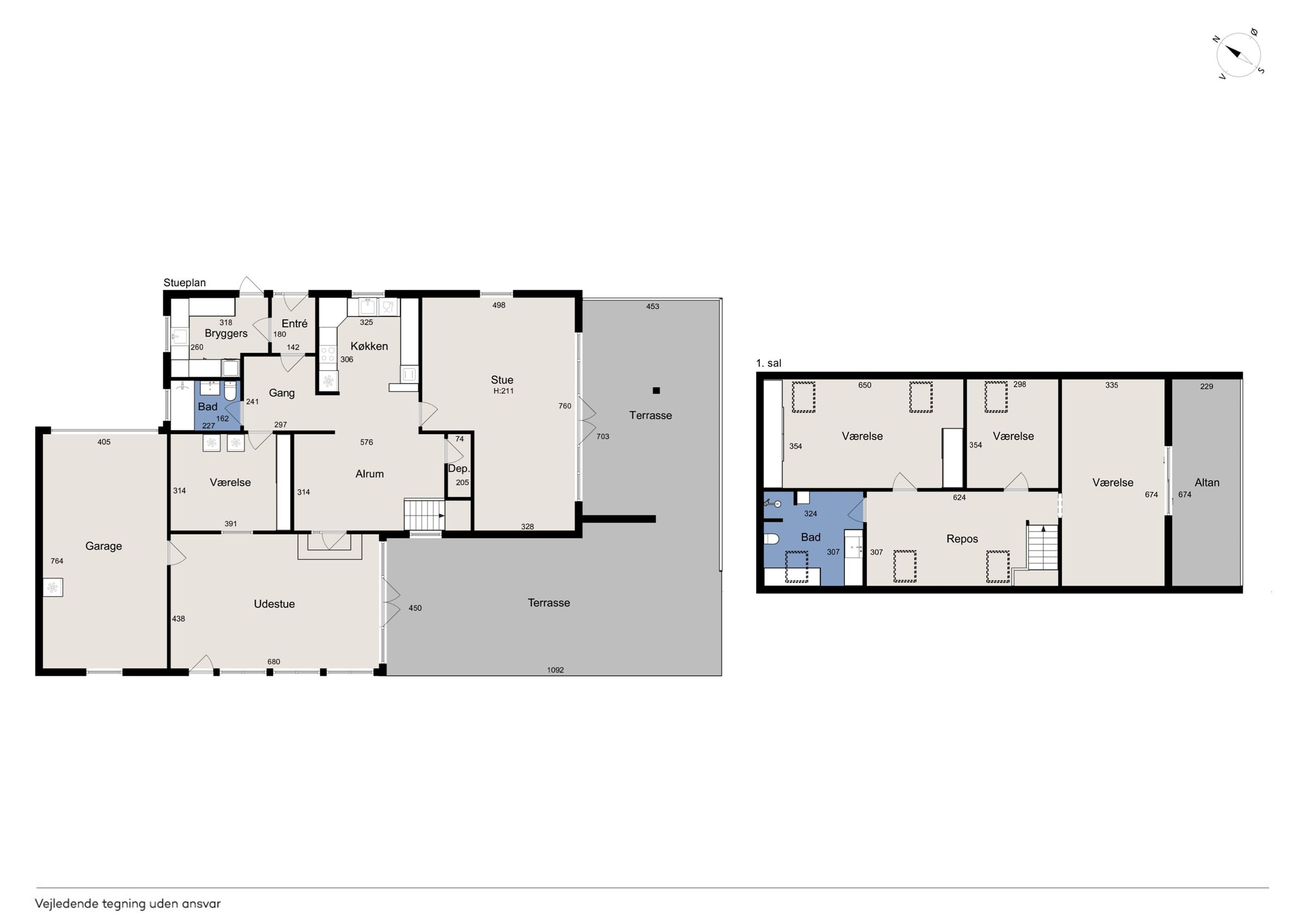
Boligen byder på 195 kvm fordelt på to plan, hvor du i stueplan finder en rummelig entré med adgang til et praktisk bryggers. Køkken-alrummet er husets hjerte og åbner op til en dejlig udestue, hvor du kan nyde den betagende udsigt året rundt. Fra køkken-alrummet er der desuden adgang til første sal og en stue med et fantastisk lysindfald fra de store vinduespartier. Fra stuen er desuden udgang til syd- og vestvendt udsigtsterrasse. Endvidere er der indrettet 4 store værelser, herunder ét værelse med direkte udgang til en svalegang med imponerende udsigt over området. Villaen har desuden to badeværelser med gulvvarme – et med badekar og et med brus, som begge er moderne og funktionelle.
Udenfor finder du en skøn grund med flere hyggelige terrasser, som giver masser af mulighed for at nyde de lange sommerdage i det fri. Der er også en garage med elektrisk port til ejendommen, som giver praktisk opbevaring og bekvemmelighed.
Beliggenheden i Tapdrup gør det muligt at nyde både naturen og byens bekvemmeligheder. Der er nem adgang til Viborg via cykel-/gåsti, og den nærliggende Bruunshåb Skole samt lokale faciliteter som børnehave og naturlegeplads gør det til et ideelt sted for børnefamilier. Området byder også på et rigt foreningsliv, som giver mulighed for aktiviteter for både børn og voksne.
Denne villa er et perfekt hjem for dig, der søger et naturskønt og fredeligt område tæt på byen, hvor komfort og livskvalitet går hånd i hånd.