Velkommen til et velbeliggende og rummeligt byhus/dobbelthus i hjertet af Fredericia centrum – blot en kort gåtur fra Øster Strand, indkøb, caféer og byens øvrige faciliteter. Her får I en bolig, der kombinerer central beliggenhed med god plads til familielivet. Ejendommen egner sig særligt godt til børnefamilien, der ønsker mange værelser og fleksible indretningsmuligheder. Derudover medfølger en garage, som giver mulighed for parkering i byen – en sjælden og attraktiv fordel i centrum.
Ejendommen har gennemgået en større renovering omkring 2014, hvor både stueplan og 1. sal blev moderniseret. Taget er også blevet skiftet, hvilket giver en god og tidssvarende ramme om boligen.
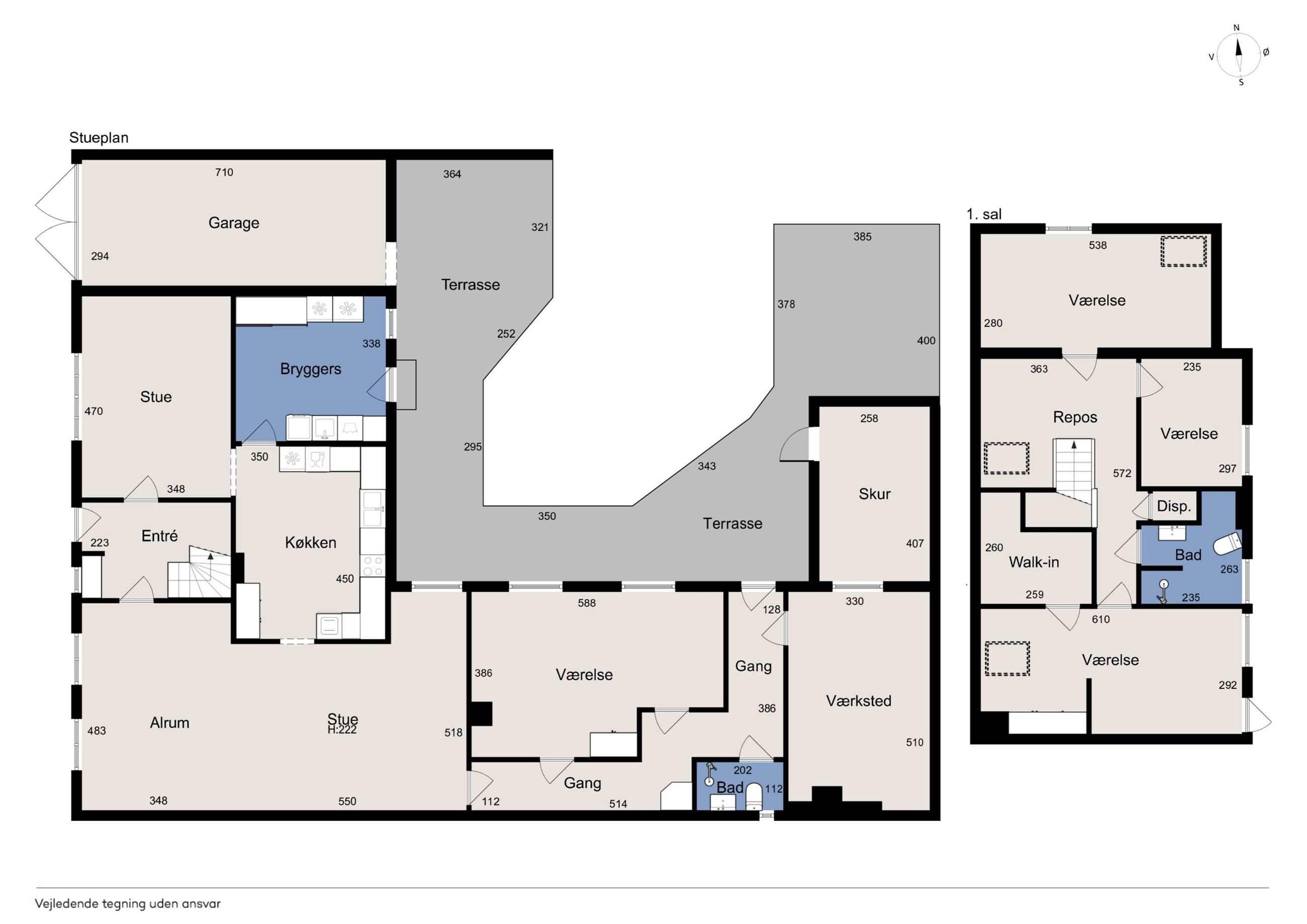
Boligen byder på en funktionel og rummelig planløsning. I stueplan træder man ind via entréen. Herfra åbner boligen sig op til et stort og lyst opholdsrum, hvor stue og alrum ligger i forlængelse af hinanden. Det store opholdsrum skaber en naturlig samlingsplads for familien med god plads til både spisebord og sofaarrangement.
Køkkenet som er fra 2014 ligger centralt placeret i boligen med god skabs- og bordplads. I forlængelse heraf findes et praktisk bryggers med plads til vaskefaciliteter og opbevaring. Stueplan rummer desuden flere værelser, som kan anvendes til børneværelser, kontor, hobbyrum eller gæsteværelser alt efter behov. Her findes også badeværelse samt gangarealer, der binder rummene sammen.
Fra boligen er der adgang til en hyggelig gårdhave, som kræver minimal vedligeholdelse og giver mulighed for udeliv i private rammer.
På 1. sal fortsætter den gode rumfordeling med flere værelser, som giver masser af muligheder for den pladskrævende familie. Her findes blandt andet flere gode soveværelser, walk-in samt badeværelse. Et repos forbinder rummene og skaber en naturlig opdeling af etagen.
En centralt beliggende ejendom med god plads, garage og kort afstand til strand, byliv og hverdagens nødvendigheder – Dalegade 3 er et oplagt valg for familien eller dem som ønsker god plads og ønsker at bo midt i Fredericia.